Ein-/Zweifamilienhaus mit Option zur getrennten Nutzung

Standort
56244 Freilingen
Kaufpreis 269.000 €
Zimmer 5
Schlafzimmer 1
Wohnfläche ca. 167 m²

Objektbeschreibung

Das Wohnhaus wurde im Jahr 1965 in massiver Bauweise errichtet und ursprünglich als Zweifamilienhaus konzipiert. Aktuell wird die Immobilie als Einfamilienhaus genutzt, die baulichen Voraussetzungen für eine getrennte Nutzung sind jedoch weiterhin gegeben, da die Leitungsführung im Obergeschoss vorhanden ist. Ein Anbau aus dem Jahr 1985 erweitert die Wohnfläche sinnvoll. Insgesamt stehen rund 167 m² Wohnfläche auf einem ca. 603 m² großen Grundstück zur Verfügung.

Das Gebäude präsentiert sich in einem sehr gepflegten Gesamtzustand und wurde über viele Jahre hinweg laufend instand gehalten sowie modernisiert. Besonders hervorzuheben ist die im Jahr 2009 ausgeführte zusätzliche Dämmung mit Klinkeroptik, die sowohl zur optischen Aufwertung als auch zur Verbesserung der energetischen Eigenschaften beigetragen hat. Das Dach wurde bereits 1985 erneuert und gedämmt. Beheizt wird das Haus über eine Ölzentralheizung aus dem Jahr 2023. Ergänzend sorgt ein hochwertiger Specksteinofen aus dem Jahr 2025 für eine angenehme Zusatzwärme und ein behagliches Wohnambiente.

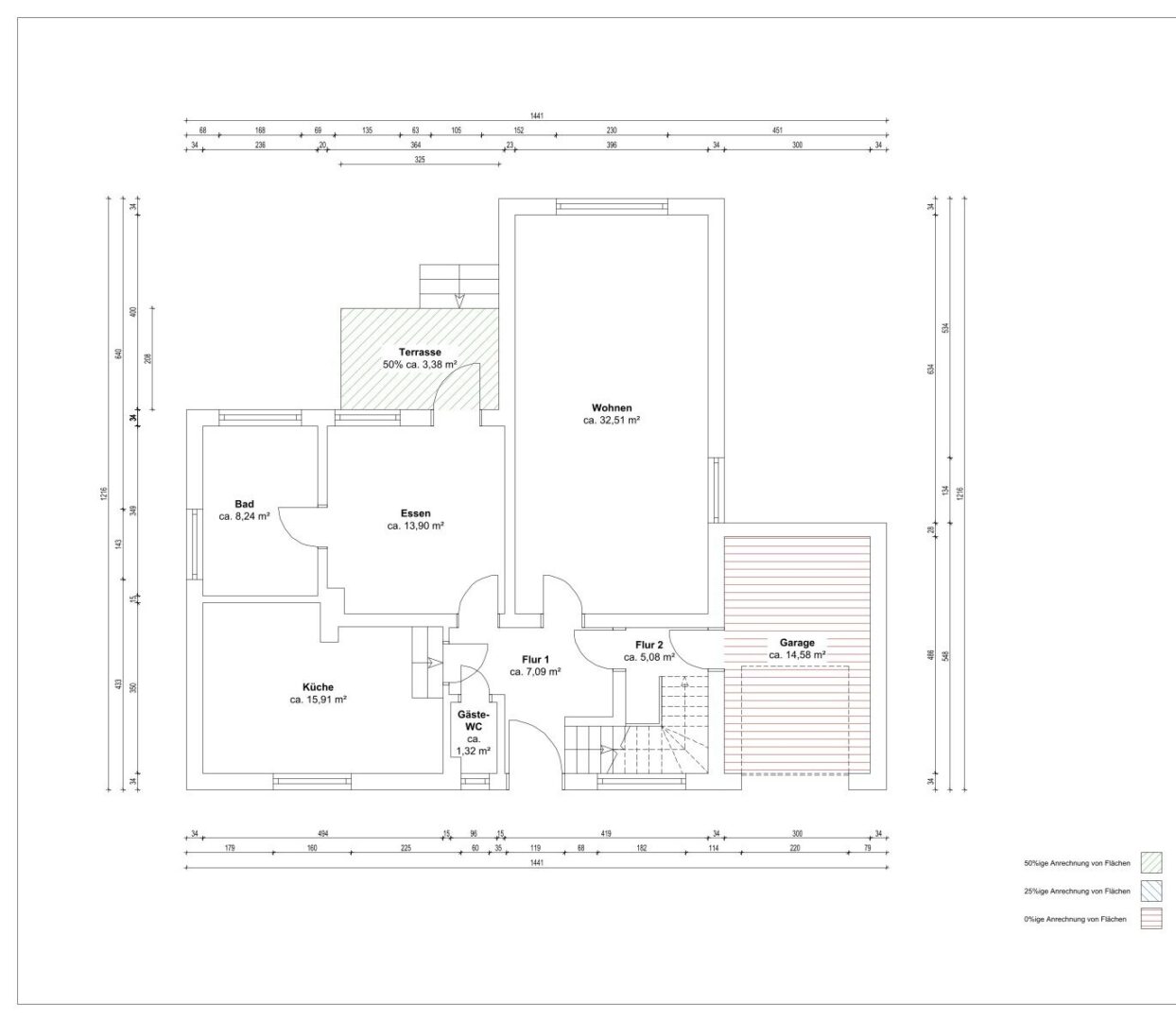
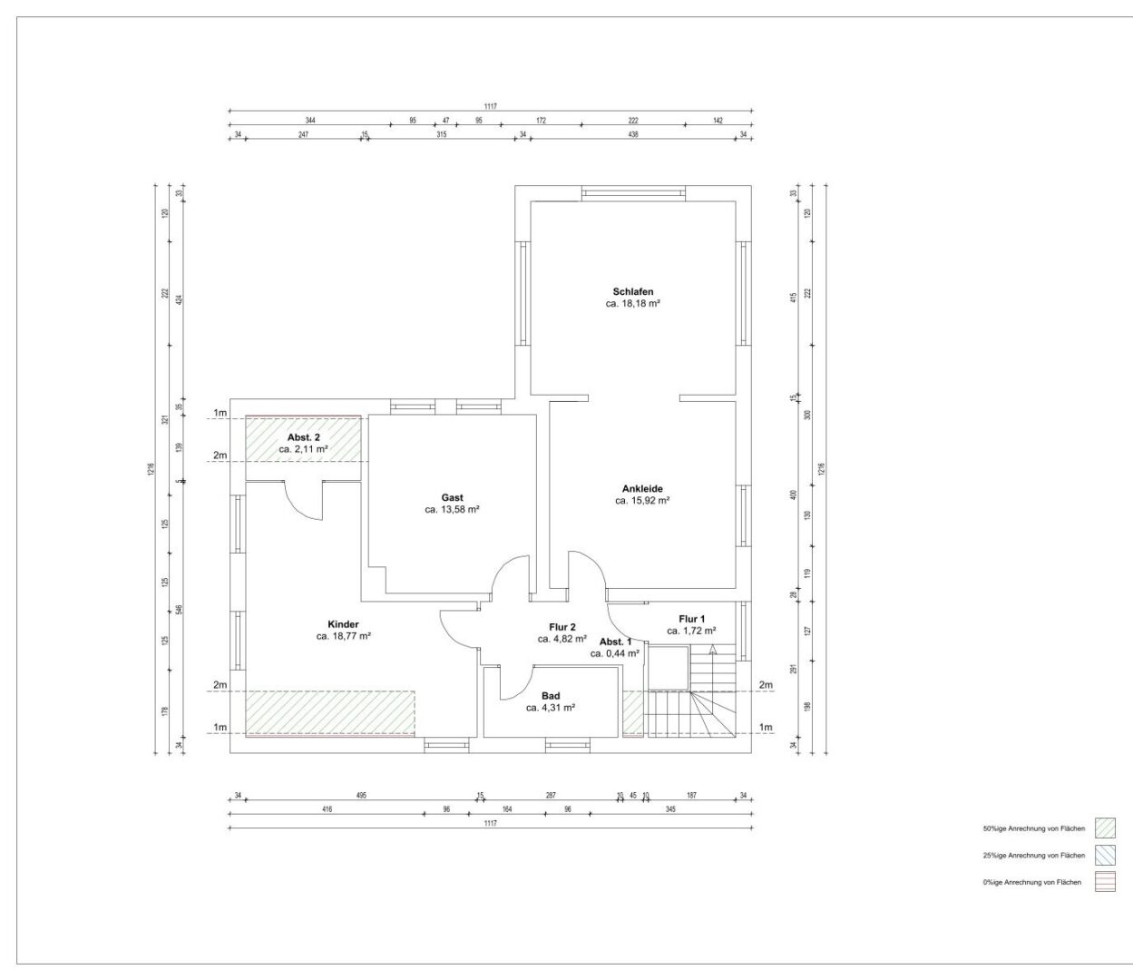
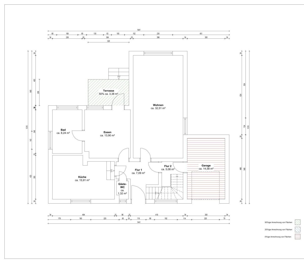
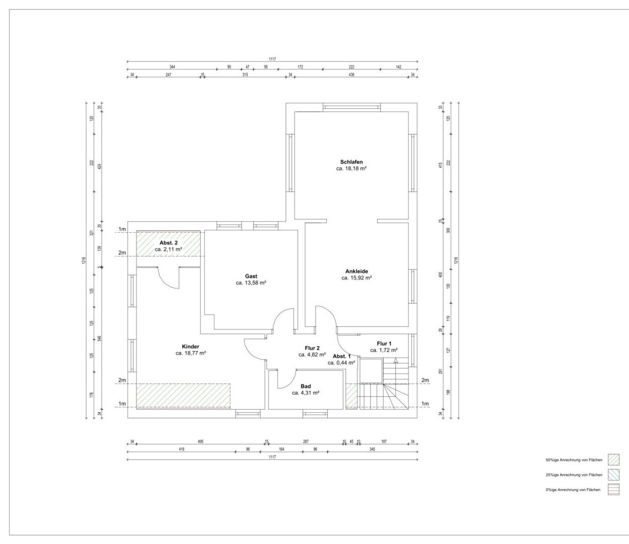
Die Raumaufteilung ist funktional und großzügig gestaltet. Im Erdgeschoss befinden sich ein Wohnzimmer mit Kamin, ein separates Esszimmer mit direktem Zugang zur Terrasse und in den Garten, eine Küche, ein Badezimmer sowie ein zusätzliches Gäste-WC. Das Obergeschoss bietet ein Schlafzimmer, ein Lesezimmer, ein Sportzimmer sowie ein Badezimmer.

Das Haus ist voll unterkellert. Neben dem Hauswirtschaftsraum stehen eine Kellerbar sowie eine separate Werkstatt zur Verfügung. Sämtliche Kellerräume befinden sich in gepflegtem Zustand, Feuchtigkeit ist nicht vorhanden.

Ausstattung

Stellplatz
Ja
Kamin
Ja
Kabel / Sat-TV Gerät
Ja
Keller
Ja

Anhänge

Energiebedarfsausweis

Lage

Makrolage

Freilingen liegt im Westerwaldkreis in Rheinland-Pfalz und gehört zu einer Region, die für ihre hohe Wohnqualität und gute Erreichbarkeit geschätzt wird. Die Anbindung an das überregionale Verkehrsnetz ist gut: Über die Autobahn A3 sind die Ballungsräume Köln/Bonn und Frankfurt am Main in angemessener Zeit erreichbar. Ergänzend dazu bietet der ICE-Bahnhof Montabaur eine schnelle Schienenverbindung in Richtung Rhein-Main und Rheinland. Die Lage ist damit auch für Berufspendler interessant, die ruhiges Wohnen im Grünen mit einer soliden Anbindung verbinden möchten.

Mikrolage

Freilingen ist ein kleiner, gewachsener Ort mit ruhigem und überschaubarem Charakter. Die Bebauung besteht überwiegend aus Ein- und Zweifamilienhäusern in einem gepflegten, dörflichen Umfeld. Die Umgebung ist ländlich geprägt, mit offenen Wiesen, Feldern und angrenzenden Waldflächen, die das Ortsbild bestimmen und für ein hohes Maß an Ruhe sorgen. Einkaufsmöglichkeiten, Kindergärten, Schulen sowie die medizinische Grundversorgung befinden sich in den umliegenden Gemeinden und sind in kurzer Fahrzeit erreichbar. Die geringe Verkehrsbelastung und das naturnahe Umfeld tragen wesentlich zur Wohnqualität bei.

Mehr anzeigenWeniger anzeigen

Objektdaten

Standort
56244 Freilingen
Wohnfläche
ca. 167 m²
Nutzfläche
ca. 45 m²
Grundstücksfläche
ca. 603 m²
Anzahl Zimmer
5
Anzahl Schlafzimmer
1
Anzahl Badezimmer
2
Anzahl sep. WC
1
Anzahl Terrassen
1
Anzahl Stellplätze
2
Kaufpreis
269.000 €
Käuferprovision
3,25% inkl. MwSt
Verfügbar ab
sofort
Objekttyp
Haus
Nutzungstyp
Wohnen
Verfügbarkeit
Verfügbar
Vermarktungstyp
Kauf
Baujahr
1965
Zustand
Gepflegt
Verkaufstatus
Verfügbar

Ausstattungsbeschreibung

• Massive Bauweise
• Baujahr 1965
• Ursprünglich als Zweifamilienhaus konzipiert
• Anbau aus dem Jahr 1985
• Wohnfläche ca. 167m²
• Grundstücksfläche ca. 603m²
• Zusätzliche Fassadendämmung mit Klinkeroptik aus 2009
• Dach 1985 erneuert und gedämmt
• Ölzentralheizung aus 2023
• Hochwertiger Specksteinofen aus 2025
• Balkonkraftwerk vorhanden

• Kunststofffenster mit zweifacher Verglasung aus 1985
• Innentüren sowie Haustür erneuert 2015
• Bodenbeläge überwiegend aus 2018
• Decken größtenteils aus 2010
• Granittreppe

• Badezimmer im Erdgeschoss saniert 2010
• Badezimmer im Obergeschoss saniert 2006
• Separates Gäste WC im Erdgeschoss

• Vollunterkellert
• Hauswirtschaftsraum im Kellergeschoss
• Kellerbar
• Werkstatt im Keller
• Kellerräume trocken und gepflegt

• Terrasse mit direktem Zugang vom Esszimmer
• Ca. 6,7m² überdachte Terrassenfläche
• Südliche Ausrichtung von Terrasse und Garten
• Grundstück überwiegend eingefriedet

• Garage mit direktem Zugang ins Haus
• Zusätzlicher Carport

Mehr anzeigenWeniger anzeigen

Weitere Beschreibung

Sonstige Angaben
PROVISIONSHINWEIS:

Sollte die/das angebotene Immobilie / Grundstück mit einer Käuferprovision inseriert sein, so ist der Interessent/Käufer bei Abschluss eines Kaufvertrages zur Zahlung der vereinbarten Provision an die Kern & Ley Immobilien GbR verpflichtet.

HINWEIS:

- Alle Angaben im Exposé stammen vom Eigentümer. Die Kern & Ley
Immobilien GbR haftet nicht für Richtigkeit.

- Falls 3D-Grundrisse verwendet werden, können diese von der Realität abweichen. Sie dienen rein der Veranschaulichung.

- Falls die Räume auf den Fotos möbliert sind, sind die Möbel nicht teil des Verkaufs, außer es wird explizit darauf hingewiesen.

Ihr Ansprechpartner

LJS_8594_1x1
Herr Justin Kern
Waldstraße 16
56271 Kleinmaischeid

Energieausweis

Baujahr laut Energieausweis1965
Energieausweisliegt vor
Energie­ausweistypBedarfsausweis
Gültig bis20.11.2035
PrimärenergieträgerÖl
EnergieeffizienzklasseE
Endenergiebedarf141,90 kWh/(m²·a)
HeizungsartZentralheizung
A+
A
B
C
D
E
F
G
H

Ähnliche Immobilien